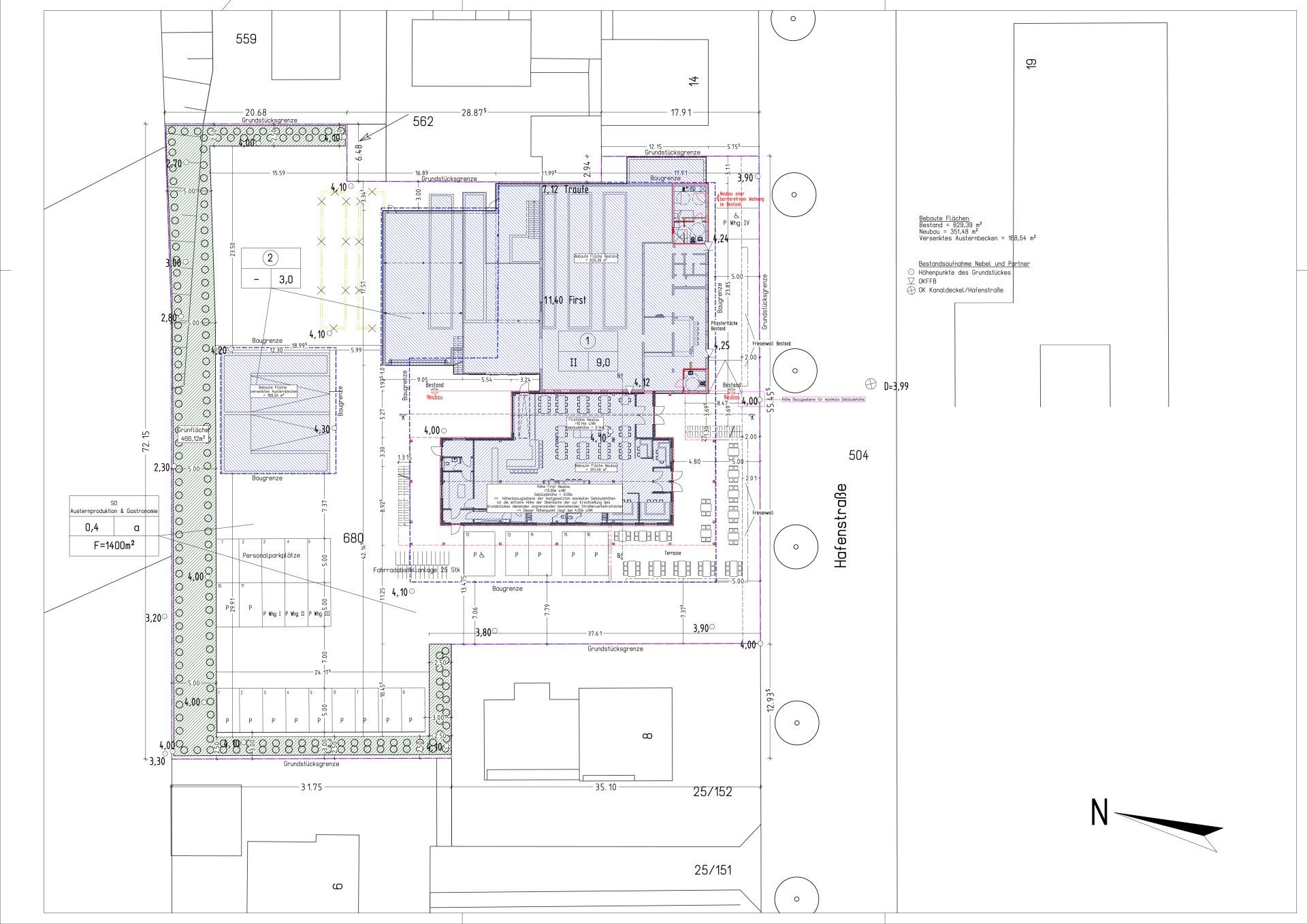
Dittmeyers Austern Compagnie

Neubau einer Halle für Gastronomie
und Personalwohnungen

Auftraggeber: Dittmeyer's Austern Compagnie
Standort: Hafenstraße in Lyst auf Sylt

Projektbeschreibung: